AG真人国际(中国)官方网站

AG真人国际(中国)官方网站
当前位置>首页>案例鉴赏>案例

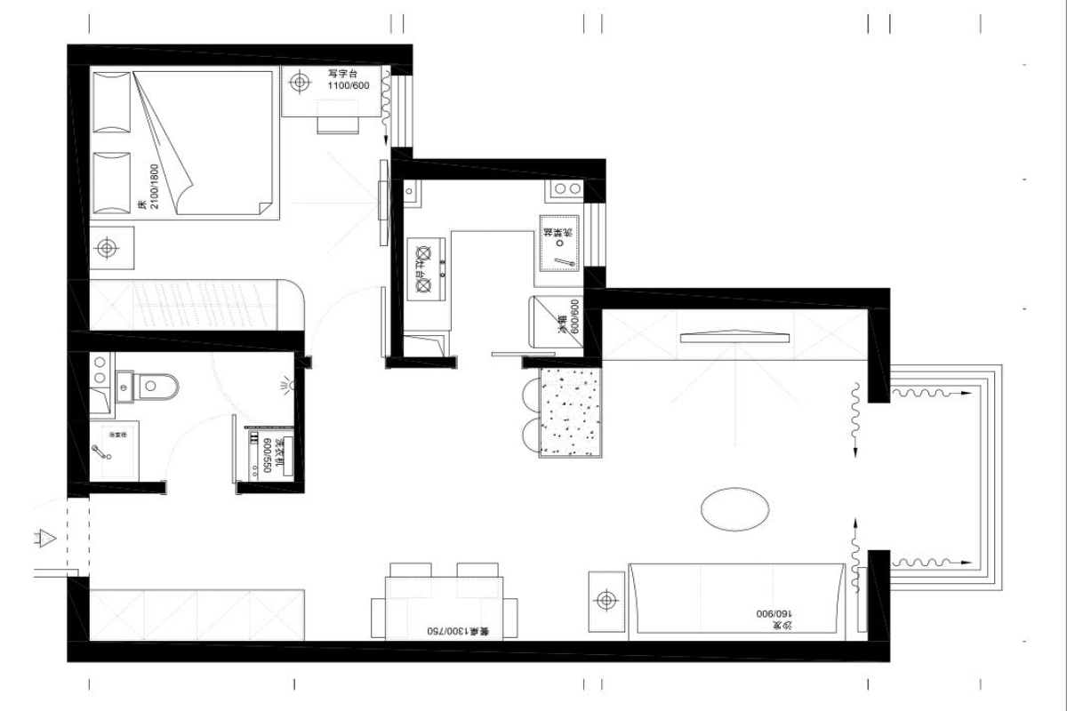
怡然世家

所在地区:北京市朝阳区   /   户型风格:一居   /   案例面积:67平米

更新时间:2020-12-07

现在预约

设计师:李世昌
级 别:优秀设计师
部 门:

李世昌

级别:优秀设计师

设计理念:设计服务生活,展现个性,体现品味!

擅长风格:现代,中式,欧式,田园,地中海,其他

主要作品:朗文世家、世华泊君、旭辉御府、鹭峯国际、志强南园、嘉园一里、马赛公馆、上元君庭、珠江帝景、温哥华森林、珠江壹千栋、檀香府...

电话预约:010-6433-2680

相关案例

友情链接:AG真人国际  米兰官网  环球体育官网  365在线体育  星空体育官网  电竞竞猜官网  摩根娱乐  凤凰彩票官网  jinnianhui金年会  ng电子游戏