本期案例是AG真人的业主任先生家的这套老房,这是一套使用面积70平米的两室一厅。二十年的时间里,随着生活的需要,做过两次简单的装修。现如孩子长大成人,老两口也退休了,想把房子好好装一下,安度晚年生活。

设计师张向怀、业主任先生夫妇、BTV主持人秦天

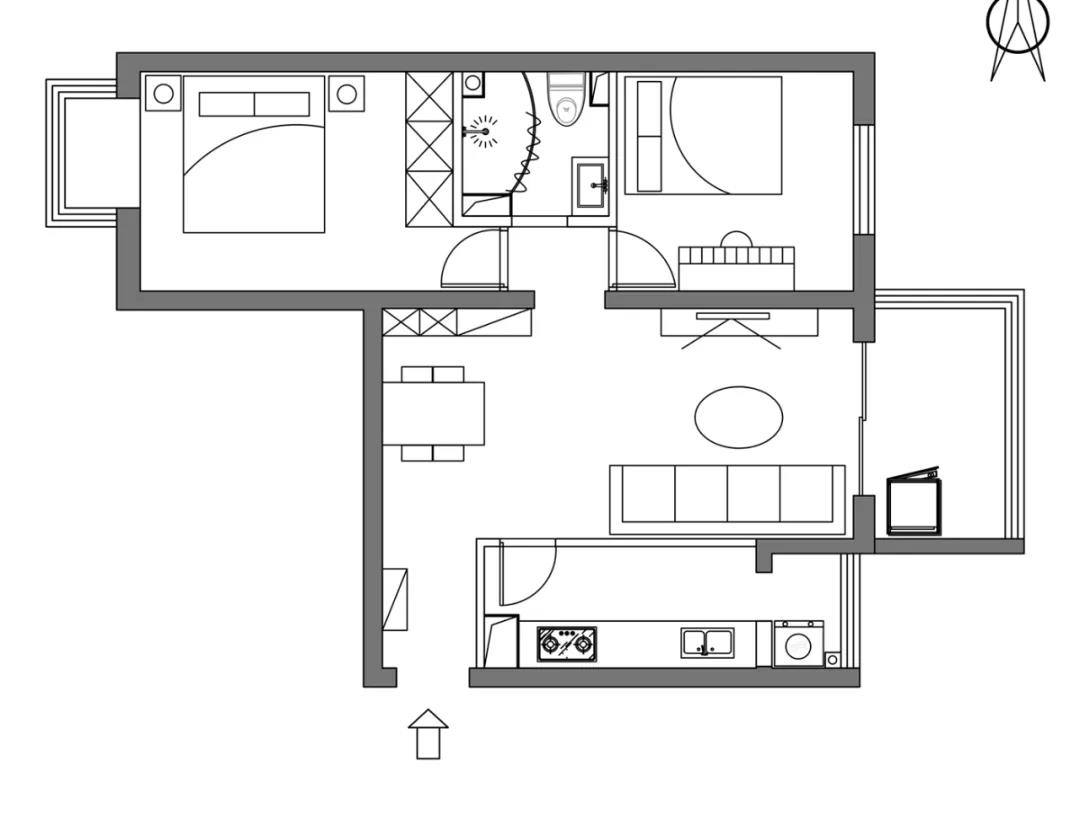
原始户型图
装修需求:
一、门厅增加储物
任先生家的门厅只有2平米,是个狭长形,改造前只在进门左手的位置摆放了一个简易鞋柜,再没有任何储物空间,而且放了鞋柜之后,进出都只能侧着身。再有进门右边就是厨房,还影响了这个空间的采光。希望设计师能合理规划门厅,既有充足的储物,又能解决采光问题,还能让老两口今出门有地方坐着换鞋。
二、合理规划厨房
厨房有6平米,面积并不小,可因为是个狭长型的格局,只能放下一组一字形橱柜。操作空间、储物空间都不够。另外原来的冰箱放在客厅的阳台上,操作动线过长,拿取东西十分不便。任先生希望改造后的厨房能够储物强大,动线合理,操作便捷。
三、改善餐客厅功能
餐客空间将近18平米,缺乏储物空间,而且,为了保暖,原来客厅和阳台之间有推拉门做隔断,导致整个餐客厅采光也很差。另外,将近5平米阳台在之前的20年里,只摆放了冰箱和堆放杂物,实在是浪费。任先生希望改造后除了合理规划餐厅之外,还能将这个样阳台充分利用起来。
四、卫生间打造干湿分区、提高安全性
卫生间只有3平米,规划了弧形的淋浴区,用浴帘作为分割,但是由于面积小,地面没有任何分割,每次洗澡水依然留的到处都是,根本起不到干湿分区的作用。而且由于是20年的老房,卫生间地面比其它空间高出20厘米,给老两口埋下了极大的安全隐患,任先生希望改造后的卫生间,能够提高安全性,布局合理,使用方便。
针对任先生提出的门厅增加储物空间、重新规划厨房、合理布局餐客厅、卫生间提高安全性等一系列改造难题,设计师张向怀是如何帮任先生一家解决的呢?

平面布置图
改造后实景:
一、门厅
设计师首先拆除了门厅与厨房相连的这部分轻体墙。与烟道齐平,做了一组鞋帽柜,不占用原有门厅空间,门厅变得宽敞。衣帽柜足够满足老两口平时的储物需求,顶面和柜体增加了光源来解决门厅的采光,折叠换鞋凳,可放可收,既不占用空间,又解决了老两口坐着换鞋的需求。
二、厨房
设计师拆除了厨房和客厅的这堵轻体隔断墙,将原本封闭的厨房改成了开放式的,再重新规划。
厨房改为开放式的,将烟机灶具移至和厨房连接的阳台,一组折叠门,打造了一个封闭式的炒菜区,阻隔油烟的同时给厨房节省出更多的储物、操作空间。

冰箱也移至厨房,厨房里拿、放、洗、切、炒,动线流畅合理。吧台的设计,既可以储物,也可以当作操作台,同时还可以当作临时的就餐台,一举多得,很是惬意。



3、客餐厅
拆除原有客厅和阳台的推拉门,将阳台这5平米也纳入到餐客厅,将这23平米空间,进行了重新布局。餐区除了摆放餐桌外,还设计一组餐边柜,用来解决餐区储物。
而客厅区域,用定制电视柜拉伸了整体的空间感,茶几沙发依次摆放,形成一种环抱的感觉,既温馨又实用。
阳台区域设计师为业主打造了多功能的休闲区和晾晒区,洗衣、晾晒都很方便。利用定制家具,还打造了一组阳台柜,存放日常的洗衣用品。曾经闲置的区域,摇身一变成了兼具休闲、洗衣、晾晒、储物的多功能空间。






4、卫生间
借用了一部分卧室的空间,卫生间由原来的3平米,扩大至将近4平米,有了独立的淋浴房,彻底实现了彻底实现了干湿分区。
五、卧室




