孩子的上学问题对于一个家庭来说是非常重要的,学校离家近,则会有诸多便利,孩子不用早起,家长也不用在工作与接送之间忙碌奔波。业主金女士的这套半地下老房,由于紧挨着学校,为了孩子上学方便,一家人打算把这套房子重新装修一番搬过来长期居住。为了能够满足现在的居住需求,设计师是如何为业主改造的呢?一起来看看吧。
设计师王维 业主金女士 BTV主持人秦天

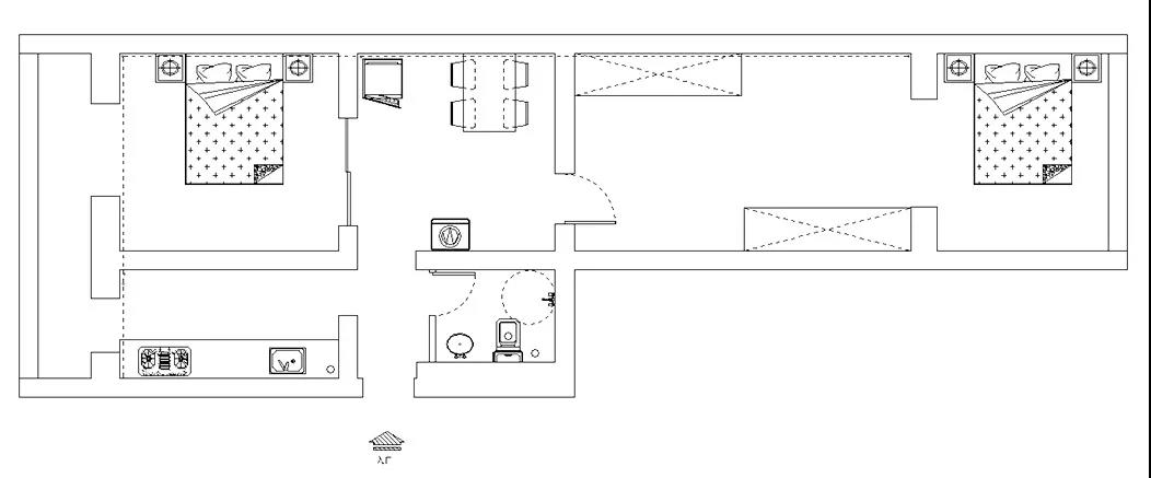
原始户型图
装修需求:
1、重新规划门厅
不到2平米的空间里,不仅有三个门还有通向客厅的垭口,并且入户门也是朝里开的,门厅空间几乎无法利用,金女士希望未来的门厅能够满足一家人储物和日常使用需求。
2、卫生间实现干湿分区、方便洗衣
2.6平米的卫生间,淋浴、如厕、洗漱都在这个区域,由于空间小,洗衣机一直放在外面,使用的时候挪进来,非常麻烦。金女士希望卫生间能够实现干湿分区并且有足够的洗衣空间。
3、合理规划厨房
5平米的厨房,是个狭长型,只能放下一组一字型的橱柜,无论是储物空间还是操作空间都不够用,冰箱只能放在客厅,金女士希望未来的厨房能够有足够的储物、操作空间,并且能为冰箱找到合理的位置。
4、重新规划客厅
9平米的客厅里,只放了冰箱和四人位的餐桌,以及一台洗衣机,连最基本的电视、沙发都无法放下,金女士希望未来的这个空间能够实现基本的客厅功能。
5、打造儿童房
10平米的卧室,将来是女儿的儿童房,金女士希望儿童房宽敞明亮,储物强大,还能够有足够的活动、学习区域。
6、重新规划主卧以及阳台
15平米的主卧是金女士夫妻俩的卧室,连接着不到8平米的阳台,金女士的母亲来了,偶尔也会住在这,两个空间相连行动不便,也缺乏隐私,金女士希望能够更合理的规划下这个空间。


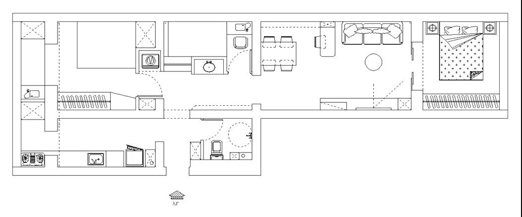
平面布置图
改造后实景:
1、门厅
设计师王维首先将入户门变成朝外开启,然后将卫生间的轻体墙向里挪动了35厘米,在此处设置了一组通顶鞋帽柜,又结合入户正对着的区域规划了一组玄关柜,并且在次卧门口,设计师还为业主设计了一组补充式鞋柜,整个空间储物充足,美观实用。
2、卫生间
由于被门厅借用了部分面积,被压缩后的卫生间有2.3平米,设计师在这里保留了如厕和淋浴的功能。借用原本客厅和卧室的部分空间,修建两面U字型墙体,一面规划为洗漱区,另一面放置了洗衣机和烘干机,实现了干湿分区,解决了洗衣难题。
3、餐客厅
设计师将原本15平米的主卧改造成了客餐厅,沙发、电视柜依次摆放。用餐空间,设计师选择了餐边吊柜来帮助一家人实现大容量储物,餐区与客厅中间用一组小吧台作为区域划分,整体空间温馨、舒适。
4、卧室
设计师将这间卧室重新调整,一整面的通顶衣帽柜满足了卧室的储物需求,而梳妆台也是必不可少。








