先生是赛车手,太太是模特,这对小夫妻不简单!


能够把爱好当成事业的人都是幸福的,吴世伦和Minda这对年轻夫妇,都把自己的兴趣经营成了事业,对职业规划看重的他们,同样也对生活有着超于常人的要求,海外的留学生活经历,也让他们的环境充满了多样性。那么,对于自己居住的房子他们又有什么样的要求呢?

吴世伦 Minda夫妇 设计师孔维俊 BRTV主持人秦天
这套房子面积145平米,是三室两厅一厨两卫的格局,也是夫妻俩未来的婚房。对于未来的家,小两口也是充满了幻想,想要通透明亮的客餐厅、想要西式厨房、想要有一个吧台、想要衣帽间、还想让家里充满共同喜好元素......

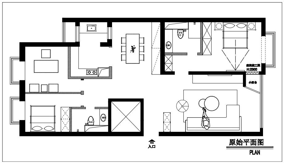
原始布局图

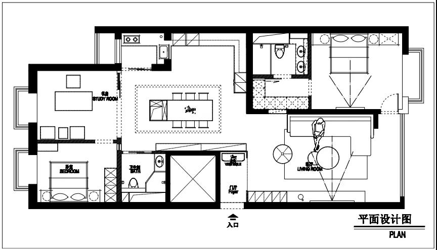
改后布局图

设计师封堵了主卧门洞,将卧室门改在异形阳台施工洞位置,使客厅整体空间更好布局。将沙发墙进行调整,移到了对面位置,隐藏式幕布满足了业主自由式观影方式,隐藏式窗帘使空间更加简约,同时也最大限度的增加了客厅的采光面,调整布局后,业主职业需要的赛车模拟器也有了充足的空间。


整个餐厨空间,设计师规划了中厨、西厨和吧台。6平米的西厨,一组定制的L型橱柜,超大台面满足了烹饪和储物等需求,柜体内嵌洗衣机、烘干机、蒸箱、烤箱、微波炉,整体空间干净美观,使用方便。



距离窗户较近的3平米空间规划为了中厨,中西厨既独立又互通。将厨房烟道和吧台作为一体式设计,顶部挂上电视,用餐、办公,娱乐小聚都是可以的。整体餐厨通透明亮,功能齐全。


主卧室调整了门的位置后,重新进行了规划,原有过道处改为了步入式衣帽间,金属与原木两种材质打造出挂放区,拿取方便,环保无污染。

主卫经过设计师的改造,拥有了超大淋浴、双台盆、壁挂式马桶,以及凹龛的设计使整体空间美观实用。
