设计师贾向楠 BRTV主持人秦天 业主金女士
本期案例是AG真人的业主金女士家的这套老房,房子建筑面积64平米,两室一厅一厨一卫的结构,平时是两口人居住,上次装修还是十七八年前,如今房屋已严重老化,诸多居住不便让夫妻二人不得不考虑重装一下。
一、装修需求
规划出独立门厅,增加储物空间,合理规划卫生间,实现干湿分区,合理规划厨房,操作方便,充分利用阳台空间,重新规划客餐厅,实现客餐厅基本功能。

原始户型图

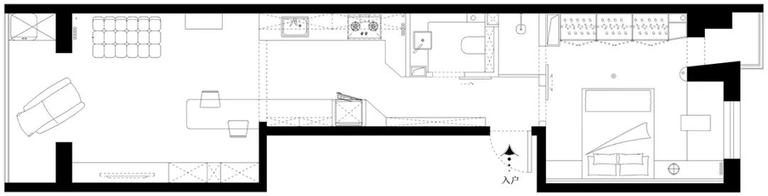
改后布局图

卧室:将4.4平米的厨房空间纳入到卧室后,对这个14平米的卧室进行了改造,利用定制家具打造的飘窗空间,休闲办公都是可以的,一门到顶的定制衣柜,实用又美观。
卫生间:设计师将封堵后的洗漱区规划为了淋浴区,卫生间的干区4.4平米,从走廊进入,L型定制浴室柜,壁挂马桶,以及一组储物柜,功能齐全,美观好用。


厨房:设计师将7.7平米的过道规划为了厨房,开放式双一字型橱柜,洗切炒动线合理,储物充足。


