韩女士家的这套房子是一套建筑面积170平米,三室一厅一厨两卫格局的老房,平时主要三口人居住,这次装修韩女士希望能够合理规划一下门厅,满足大容量储物;重新规划客餐厅,改善客厅采光;重新规划厨房,满足日常操作需求;卫生间实现干湿分离。

原始布局图

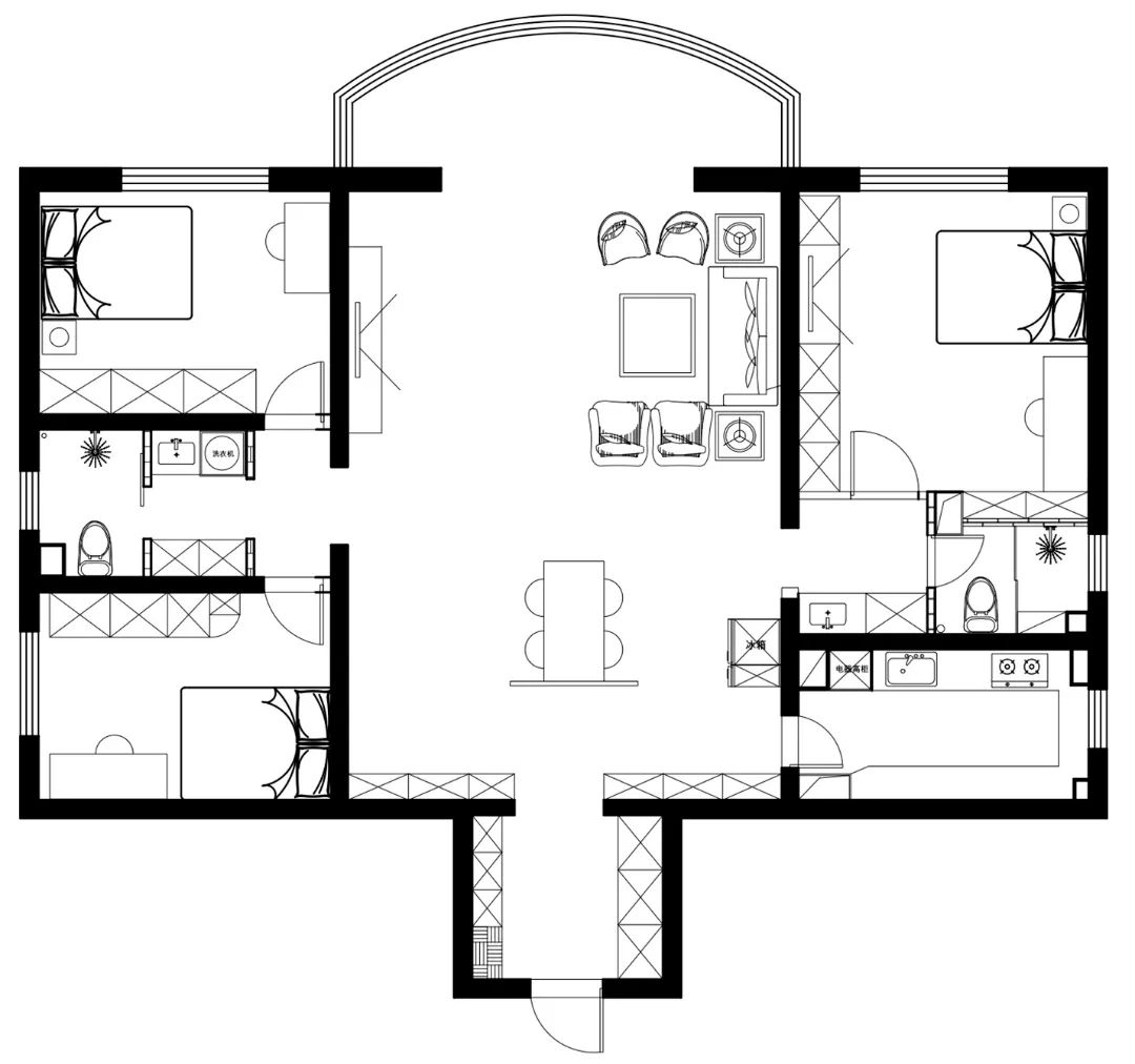
改后布局图
门厅——门厅空间5.5平米,设计师利用定制家具为业主打造了入户玄关,进门左手边一组通顶鞋柜,方便换鞋和简单的挂取衣服、摆放随手物品。右手边则打造了整组的换衣区,利用顶面筒灯、洗墙灯和鞋柜感应灯的配合,让这个采光并不好的入户空间更加明亮。


客餐厅——客厅空间47平米,设计师以两个卫生间为中轴线划分出餐厅和客厅空间,利用金属质感屏风为韩女士一家打造出开窗见景效果的餐区,很好的遮挡了餐区及客厅。餐桌居中摆放,两边预留出来的环型动线,走动起来更加舒适。


拆掉原本阳台的推拉门,将这8.6平米的空间也纳入到客厅中,视野通透、采光明亮。为了解决房高过低,空间压抑的问题,设计师利用叠层吊顶从视觉上提升房高,护墙板打造的沙发背景墙再配合格栅和线型灯,改造后的餐客厅空间视野开阔、居住舒适、品质更高。



厨房——设计师将这个7平米的厨房重新布局,将冰箱挪到餐区,在这里规划了U字型橱柜,将操作空间和储物空间进行最大化利用,吊柜下方进行了感应灯的设计,照明更充分,通顶电器柜操作更方便。


卫生间——重新规划的两个卫生间,做了很明确的区域划分,一个给孩子用,一个韩女士夫妻俩用,而且都彻底实现了干湿分区,提高使用的舒适度,次卫的干区还进行了通顶收纳储物的设计,满足了一家人的需求。



卧室



