设计师尉迟德龙 BRTV主持人秦天 业主蒲先生夫妇
AG真人的业主蒲先生家的这套房子,建筑面积82平米,两室一厅,一厨一卫的格局,是去年买的二手房,平时主要老两口居住,房子无论从格局还是使用上都存在一些问题,如何规划成了问题,AG真人的设计师又给出了什么样的改造方案呢?
一、装修需求
1、增加门厅储物,改善入户门正对卧室门的尴尬
2、解决次卧隐私差,临街噪音大的问题
3、合理利用厨房空间,增加厨房储物
4、重新布局客厅空间
5、卫生间干湿分离

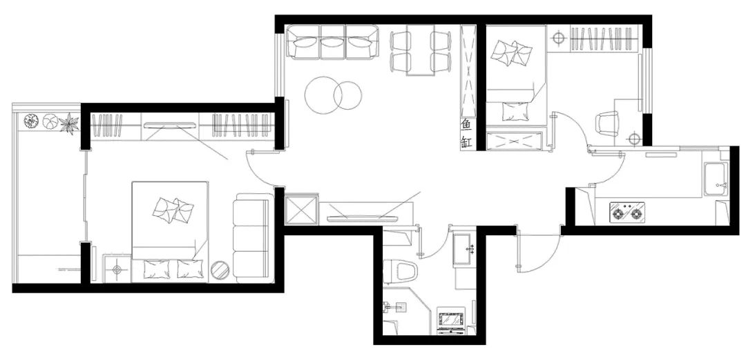
原始布局图

改后布局图
二、实景
门厅空间
为了解决入户空间缺乏储物,及入户门正对次卧门的难题,设计师将次卧的门向厨房方向移动了90厘米,同时在这里做了一个凹龛,增加衣帽柜,解决了门厅的收纳难题。

次卧
移了门之后,不仅保证了次卧的私密性,同时里面的空间也更加好布局。再将窗户更换为三层断桥铝,解决了噪音干扰的问题,居住起来更加舒适。
主卧
厨房
次卧门移动后,厨房的门也随之改变,与烟道齐平,结合AG真人的《厨房设计调研单》重新规划了厨房,一字形橱柜调整为L形,重新布局了洗切炒动线,归纳细分了储物,同时将可利用的空间都充分利用上,让整个厨房空间更好用。
客厅
设计师重新规划了客厅空间,隐藏了管道,增加了储物和用餐区,功能齐全,使用方便。
卫生间
卫生间的面积没有变化,根据使用频次进行了重新布局,实现了干湿分离,使用起来也更加方便。