业主马女士家的这套房子,是刚买的二手房,房屋面积100平米,是三室一厅一厨一卫的格局,未来常住人口是四口人,对于房子翻新马女士也有自己的一些想法。
装修需求:
1、重新规划门厅,增加储物空间
2、重新规划卫生间,实现干湿分区
3、曾加厨房储物空间
4、合理规划客厅,满足基本生活需求
5、三居改四居

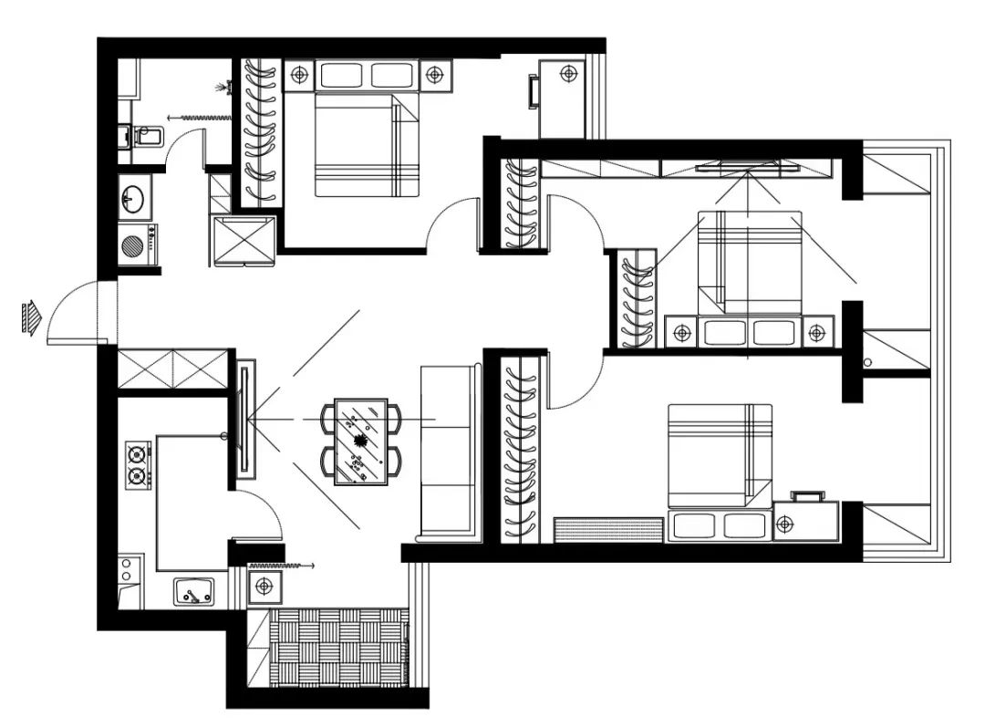
原始布局图

改后布局图
设计师将进门左手边卫生间墙体向门厅方向移动了30厘米,扩大了卫生间面积。同时,将右手边厨房门洞进行封堵,移动这面墙体,压缩部分厨房面积,利用这个凹龛为马女士一家人打造了一组通顶鞋帽柜,解决了门厅的收纳难题。

设计师挪动了卫生间的墙体后,卫生间的面积扩大到5平米,设计师重新规划出干区和湿区。除了满足如厕、淋浴、洗漱、洗衣功能外,还在这里打造了一组通顶储物柜来分担卫生间的储物难题。


设计师结合马女士家三居变四居的需求,将第四居室安排在原有餐厅的位置,利用AG真人的定制家具打造了集办公、储物、休息为一体的小卧室,为了让客厅与这个空间更加开阔,利用软帘进行分隔。客厅依次摆放了沙发、餐桌方便日后一家人活动、用餐。
厨房重新开了门洞,面积从6平米缩小到5平米,再结合AG真人的《厨房设计调研单》设计师重新规划了厨房,将原有的L型橱柜更换为U字形橱柜,动线合理,改造后的厨房储物更强大,功能更齐全,无门把手的橱柜设计更为整体。


