业主李先生家的这套老房面积83平米,是两室一厅一厨一卫的格局,平时是三口人居住,李先生一家已经在这套房子里住了很长时间了,一方面是以前的装修已经老旧,另一方面是有些功能区已经不能满足现在的居住需求。
装修需求
增加门厅储物,解决采光问题 。厨房增加储物和操作空间。次卧增加储物,解决采光问题。重新规划客厅,增加吧台和收纳空间。卫生间干湿分离,增加浴缸。
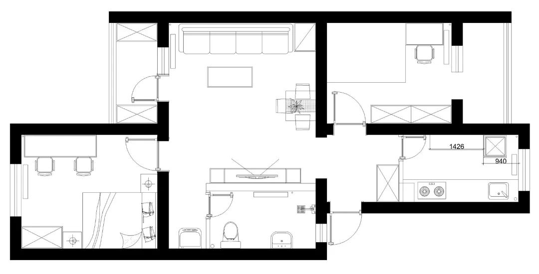
原始布局图
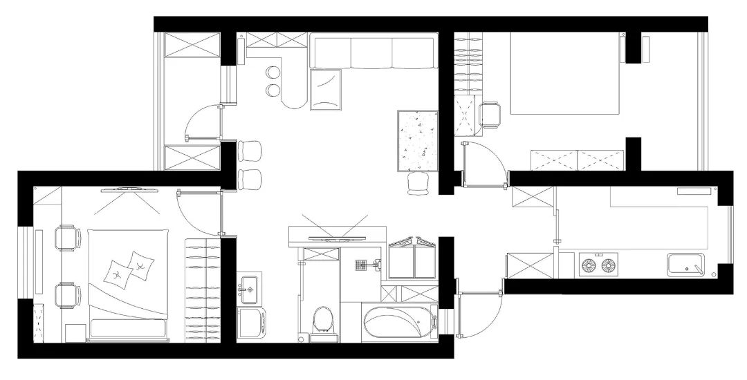
改后布局图
门厅
设计师拆除了厨房部分墙体,安装了玻璃推拉门,借用厨房的采光,让整个门厅明亮起来,同时,沿两侧墙体做了通顶鞋帽柜,解决了门厅的收纳问题。
厨房
设计师把冰箱移出厨房,将原有双一字形橱柜更换为U形橱柜,增加了操作及储物空间,调整了使用动线后,厨房使用方便,功能齐全。
卧室
设计师拆除了次卧阳台的推拉门,将阳台的采光引入卧室,让整个空间更加明亮温馨,利用AG真人的定制家具,打造了一组集储物、上网休闲的多功能定制柜,以及一组斗柜,增加了次卧的收纳空间。
客厅
设计师将客厅与卫生间共用的一面墙体重建为了一面Z字型墙体,利用墙体的凹陷空间放置了双开门冰箱,将四人位沙发改为三人位后,利用空余的空间为业主打造了吧台,吧台下面的地柜以及吊柜为客厅增加了收纳空间。
卫生间
重建了卫生间与客厅共用的一面墙体后,卫生间面积扩大到6.5平米,设计师重新规划出浴缸区和淋浴区,满足了如厕、沐浴、洗漱、洗衣功能。









