本期案例是AG真人的业主大乐先生家的这套老房,房子使用面积48平米,一室一厅一厨一卫的格局,房子面积虽然小,但小两口的需求却不少。
装修需求
合理规划门厅,增加储物
合理规划卫生间,满足如厕、洗漱以及增加浴缸的需求
增加厨房储物,实现中西厨合并
合理规划客厅,增加储物空间
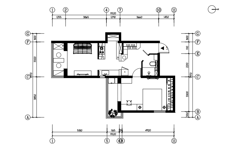
原始户型图
改后布局图
门厅空间
设计师封堵了过道里原通往厨房的门洞,利用新建的这面墙体规划了一组L型鞋帽柜,满足了门厅的储物需求,并且将右手边的鞋帽柜和左手边的卫生间门,都进行了切角处理,方便通行。
卫生间空间
设计师将卫生间的一面墙体外移,将卫生间面积由2.4平米扩大到3.2平米,正好可以放得下一个浴桶,满足了女主人泡澡的需求,马桶改为壁挂式,减少了卫生死角,马桶上方进行了储物规划,淋浴区也增加了壁龛,大大增加了卫生间的储物空间。
厨房空间
设计师将原来3.5平米的厨房扩大到现在的7平米,中西厨房合理布局,中厨将原来的暗厨改造为现在的明厨,中西厨空间设计师都为业主规划了大量的储物柜,以满足日常储物需求。
客厅空间
客厅空间整体墙面使用了抹茶色,搭配奶油色沙发以及原木风家具,满足了业主奶油风及自然风的需求。客厅灯光设计师搭配了天际线的灯,可以通过不同角度打出不同的光晕。
阳台垭口设计师做了圆弧形处理,地台进行了延展,把客厅、喝茶区、休闲区融到了一起 。阳台纳入客厅形成了一个12平米的空间,不仅有了喝茶休闲的地方,还可以当做一个次卧使用。地台高度22厘米,内藏两个1米5的大抽屉,增加了客厅储物空间。








