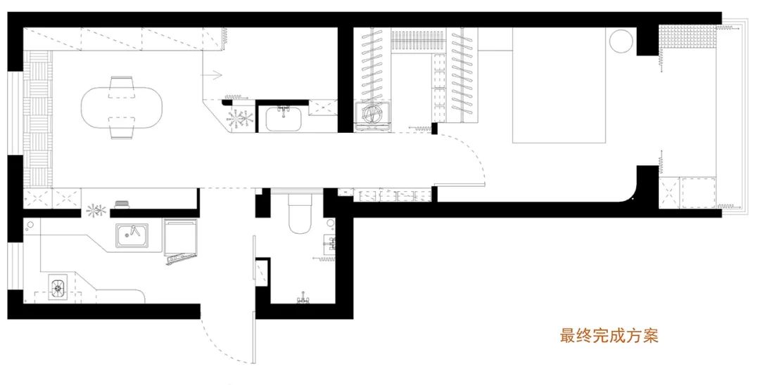
本期案例是一套使用面积42平米的老房,两室一厅一厨一卫的格局,是设计师王维自己的房子,房子本身也存在着诸多问题,设计师也有自己的规划想法。


客餐厅空间
去客厅化的设计 让这个多功能空间更具个性
功能更符合主人的生活习惯
吧台 半高矮柜 卡座及多人位餐桌
屋主在这里办公 休闲 娱乐 用餐都可以
主卧空间
整面墙体的复古壁布
使卧室空间更具氛围感



卫生间
区别于棱角分明的线条形态
中古风装修中处处使用着有机曲线
复古红和宝石蓝也是常用的两种经典配色
客卧空间
几何感 线条感 抽象感风格的挂画
更丰富了次卧空间
厨房空间
一组U字型橱柜充分利用了狭小的空间
为厨房提供了充足的储物及操作台面
怀旧绿更是让厨房有了一丝复古的格调
