袁女士家的这套房子,建筑面积100平米。未来袁女士、袁女士女儿女婿,还有2岁的外孙女,一家三代四口人生活在这里。目前全家人需要的生活方式是既要“围着孩子”转,同时也要有自己的“生活空间”。
装修需求:
增加门厅储物,解决门厅正对厨房门的问题
增加餐厅收纳,注重安全设计
扩大厨房操作空间,并能兼顾孩子
客厅满足大人和孩子的学习,娱乐生活
卫生间优化布局,扩大淋浴区
合理规划两间卧室

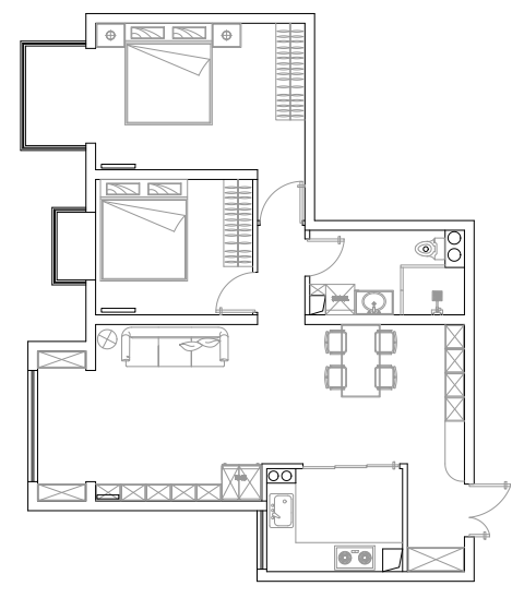
原始布局图

改后布局图
门厅空间
设计师调整了入户门的开启方向,改为外开,同时封堵了厨房门,门厅规划了一组通顶鞋柜,增加了储物空间。
门厅空间
设计师调整了入户门的开启方向,改为外开,同时封堵了厨房门,门厅规划了一组通顶鞋柜,增加了储物空间。
厨房空间
原来的厨房门封堵后,设计师拆除了厨房轻体墙,改为三联动推拉门,既节省了空间,让空间更开阔,也方便做饭的同时能照看到小孩的情况。


客厅空间
客厅16平米,没有摆放茶几,给孩子留有足够的活动空间,沙发和电视柜调换位置,利用定制家具,减少了直角的磕碰,同时也实现了放书,放电视,储物的需求,冰箱还可以纳入其中。

卫生间
卫生间调整了马桶的位置,为业主规划了一个90厘米乘1.2米的淋浴空间,方便一家使用。
主卧空间
主卧室一组通顶衣柜,一张双人床,活动空间比以前更大了,阳台留出空间作为健身区域。
