小两口的这套婚房建筑面积100平米,实际使用面积74平米,两室一厅一厨两卫。照理说两个人住这套房子,暂时是够用的,但考虑到未来家庭人口结构的变化,生活方式也会随之变化,所以小两口希望眼下的设计除了能够符合当下的生活需求,还能够满足未来的使用。

装修需求:
合理规划门厅,满足储物需求的同时使用更便捷
卫生间干湿分离,满足三代人需求
合理规划客餐厅,满足会客、就餐的同时保障空间宽敞、明亮
充分利用厨房空间,增加储物,融入现代化厨电设备
合理规划卧室

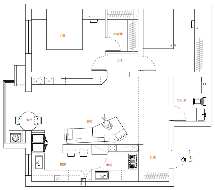
原始布局图

改后布局图
门厅空间
设计师将入户门变成向外开,门厅动线更顺畅,一组定制鞋帽柜从细节入手,镂空格的高度为1米,老人可当成扶手,小孩放东西也够得着,柜子进深50厘米,储物量充足。
卫生间
客卫拆除了原卫生间里的隔断,3.8平米的空间,重新布局洗漱、如厕和淋浴功能。考虑到未来有孩子,方便日后给孩子洗澡,淋浴区和马桶之间采用浴帘做隔断,起到了干湿分区的效果。

客厅空间
客厅加阳台的面积共有30平米,设计师把原来餐厅位置移到了阳台,放一个折叠餐桌,可满足多人就餐。原来餐厅的位置做了留白,短期内可以作为小两口的健身运动空间,未来有了孩子,则可以作为孩子的活动空间。
沙发和电视墙的位置对调,会客区与厨房相邻,从动线上更合理。沙发背后、电视墙都结合空间做定制柜,满足书籍、物品的收纳和展示。


厨房空间
拆除厨房和客厅间不承重的轻体墙,重新规划厨房,打造了中西厨结合的形式,中厨用镁铝门做分隔,阻隔油烟。西厨部分与客厅联通,将现代化的厨电设备融入其中。


卧室空间
主卧13平米,满足了婚房所需的氛围感,除了在墙面、灯饰上营造温馨外,并没有做定制衣柜,空间留白,也是为小两口未来有孩子,放婴儿床预留足够空间。
靠近主卧的卫生间,现在变成了衣帽间,满足小两口的大量储物。同时也预留了卫生间所需水路、电路、防水,日后恢复成卫生间也是很方便的。
