这套房子使用面积64平米,两室一厅一厨一卫。主要是安女士的父母居住,外孙女偶尔过来。为了能让父母安享晚年生活,安女士一定要给父母营造一个舒适、安心的家。

装修需求:
增加门厅储物空间,方便老人使用
合理布局厨房,扩大操作台面
客厅满足会客,就餐,收纳等需求
合理规划卫生间,使用方便安全
重新规划两间卧室

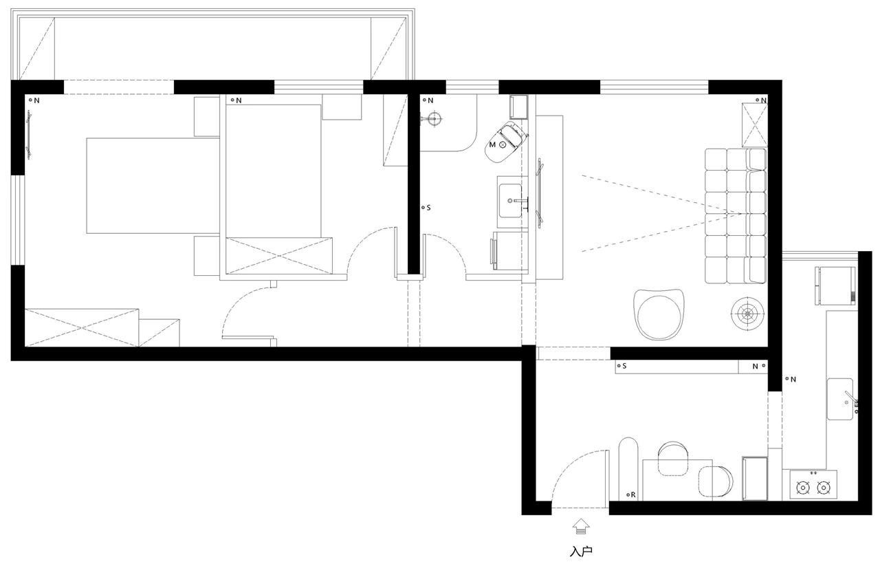
原始布局图

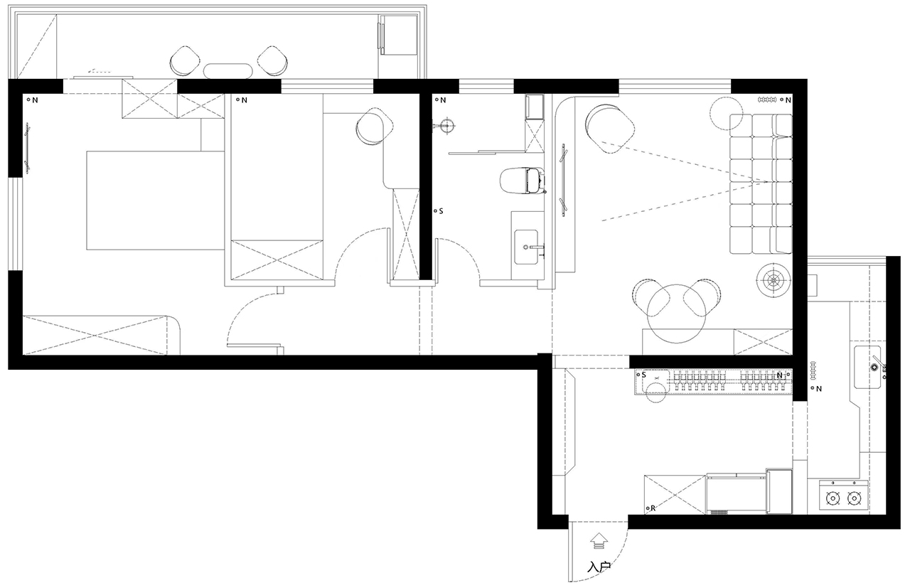
改后布局图
门厅空间
设计师将门厅和餐厅这两个区域的功能融合,在这将近8平米的空间里,集合了换鞋挂衣、冰箱嵌入、西厨、酒柜以及家政柜六大功能,并且,还充分考虑到了水电位置、家居动线等方面,充分满足了两位老人对储物的需求。
厨房空间
把冰箱移走后,厨房实现了U形橱柜的布局,储物问题得以解决,根据洗切炒等功能区域的划分,设计师把备菜区的台面压缩了20厘米,相应的扩展了相邻炒菜区的空间,从而满足了炒菜时对空间的要求。此外,橱柜的柜体颜色、墙面材质都考虑到了日后清洁时的方便,以降低老人家务劳动的强度。
客厅空间
客厅通过定制柜体,依墙制作了卡座沙发、餐边柜,实现了餐厅、水吧的功能,既实现了储物功能,还不过多占有空间。电视墙也挂上了大电视,提升了两位老人的观影感受,在电视墙造型上设计师运用了弧形线条,实用美观。
卫生间
卫生间通过马桶移位,实现了淋浴区的扩大,同时,洗衣机移到阳台,如厕、洗漱的空间也变得宽敞了,为了方便老年人生活,这次装修还购置了智能马桶、智能浴室柜,提升了老人的居住品质。
卧室空间
两间卧室充分利用空间做了沿墙收纳,特别是次卧室,门洞往左移了40厘米,这样一来,门后的空间也利用上了。


