AG真人国际(中国)官方网站

AG真人国际(中国)官方网站
当前位置>首页>案例鉴赏>案例

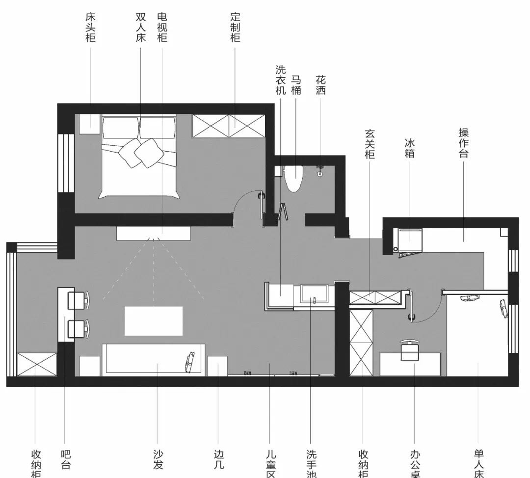
华远北街

所在地区:北京市西城区   /   户型风格:两居   /   案例面积:78平米

更新时间:2020-12-11

现在预约

设计师:王昊
级 别:主任设计师
部 门:

王昊

级别:主任设计师   BTV《生活+》特约设计师

设计理念:业主可以不懂设计 ,但设计师不可以不懂生活。

擅长风格:现代,中式,欧式,田园,地中海,其他

主要作品:北苑家园, 威尼斯花园 ,荣 尊堡国际公寓 ,达龙骏景, 时间国际, 上东三角洲, 龙泽苑, 国 典华园, 北苑家园 ,枫桥别墅 ,纯粹建舍, 京艺天朗, 阳光上东 , 天和人家, 蓝山国际...

电话预约:010-6433-2680

相关案例

友情链接:环球体育官网  电竞竞猜官网  庄闲和游戏官网  乐鱼体育官网  电竞竞猜官网  ng电子游戏  环球体育官网  米兰体育app官网  ng电子游戏  电竞竞猜官网