张先生新买的这套房子面积104平米,两室一厅一厨一卫的格局,未来一家三口人居住,除了要满足日常生活需求外,还要给小朋友留下足够的成长空间。

原始户型图

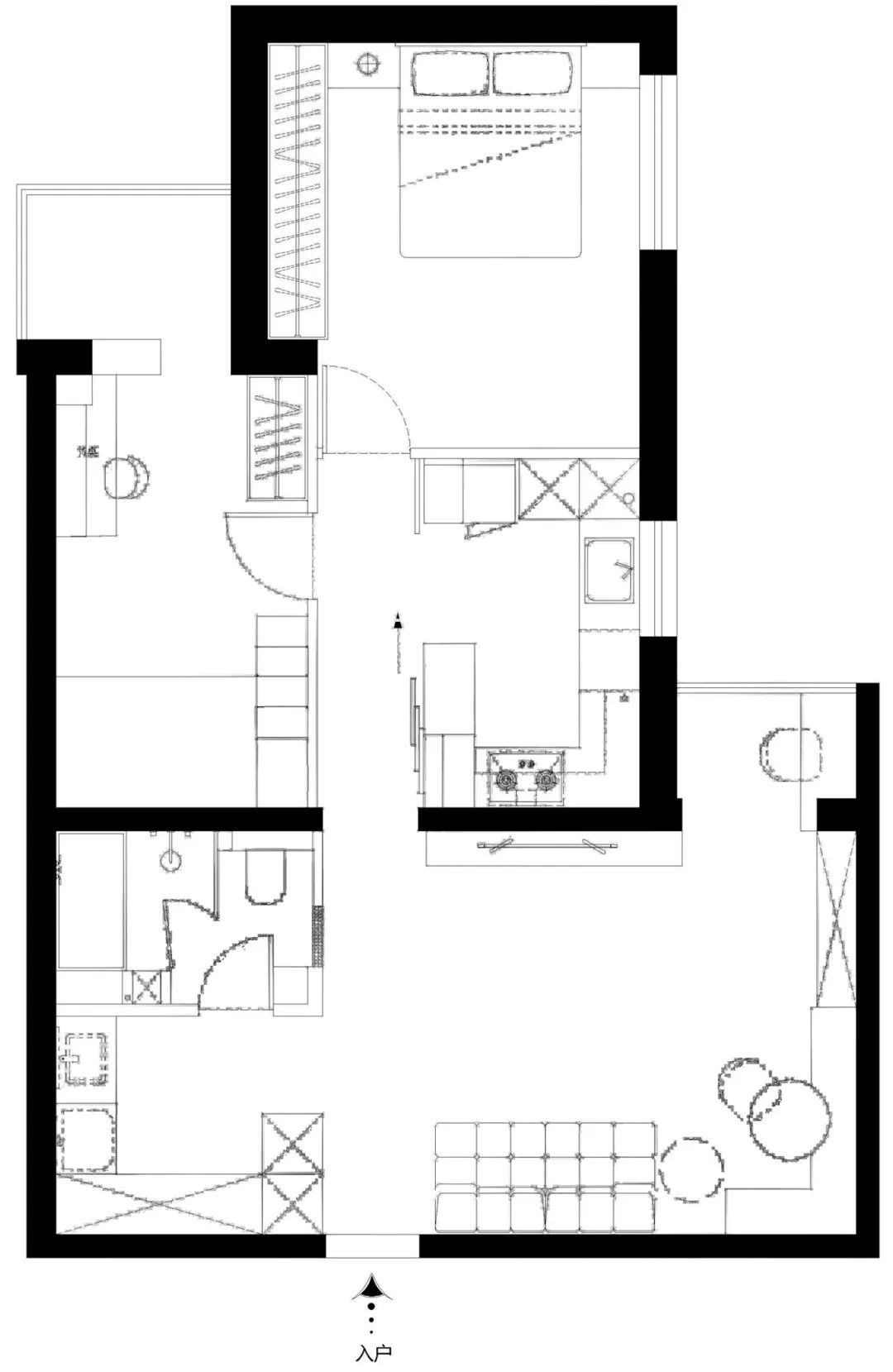
改后布局图
门厅
设计师将进门左手边的整个区域利用AG真人定制家具打造了一组U型定制柜,进门处的两面柜很好的解决了门厅的收纳需求,里面则规划为了家政间。
家政间融合了洗烘功能和收纳功能,同时,也进一步补充了门厅收纳需求。
卫生间
设计师改变了卫生间门的位置,将洗手池外移,里面为业主规划了如厕、淋浴和泡澡区。
客餐厅
根据业主需求,客厅摒弃了传统布局方式,利用AG真人定制家具打造了集休闲、展示、储物为一体的多功能空间。
厨房
设计师利用AG真人定制家具规划了一组G形橱柜以及高柜,使厨房储物强大,功能齐全,动线合理。吧台的设计,更便于一家人使用。玻璃推拉门让整个厨房可开放,可封闭,美观实用。
儿童房
考虑到现在孩子还小,设计师在儿童房内为小孩打造了一处秘密基地作为娱乐空间,等孩子长大后这里还可作为储物区,上面是睡眠空间。同时利用定制家具打造了学习区以及收纳柜。
主卧










