梅先生家的这套房子建筑面积62平米,使用面积只有43平米,是老式的两居室户型,一间作为客厅,另一间作为卧室,可如今随着孩子的成长,一家的三口的需求有了新的变化,梅先生夫妻认为现在房子有诸多需要改善的地方。
装修需求
1、重新规划厨房,增大操作空间及储物空间
2、合理规划客厅空间,并且要满足客厅、餐厅、办公的需求
3、改善卫生间门正对入户门的尴尬,实现干湿分区
4、增加一间卧室作为儿童房

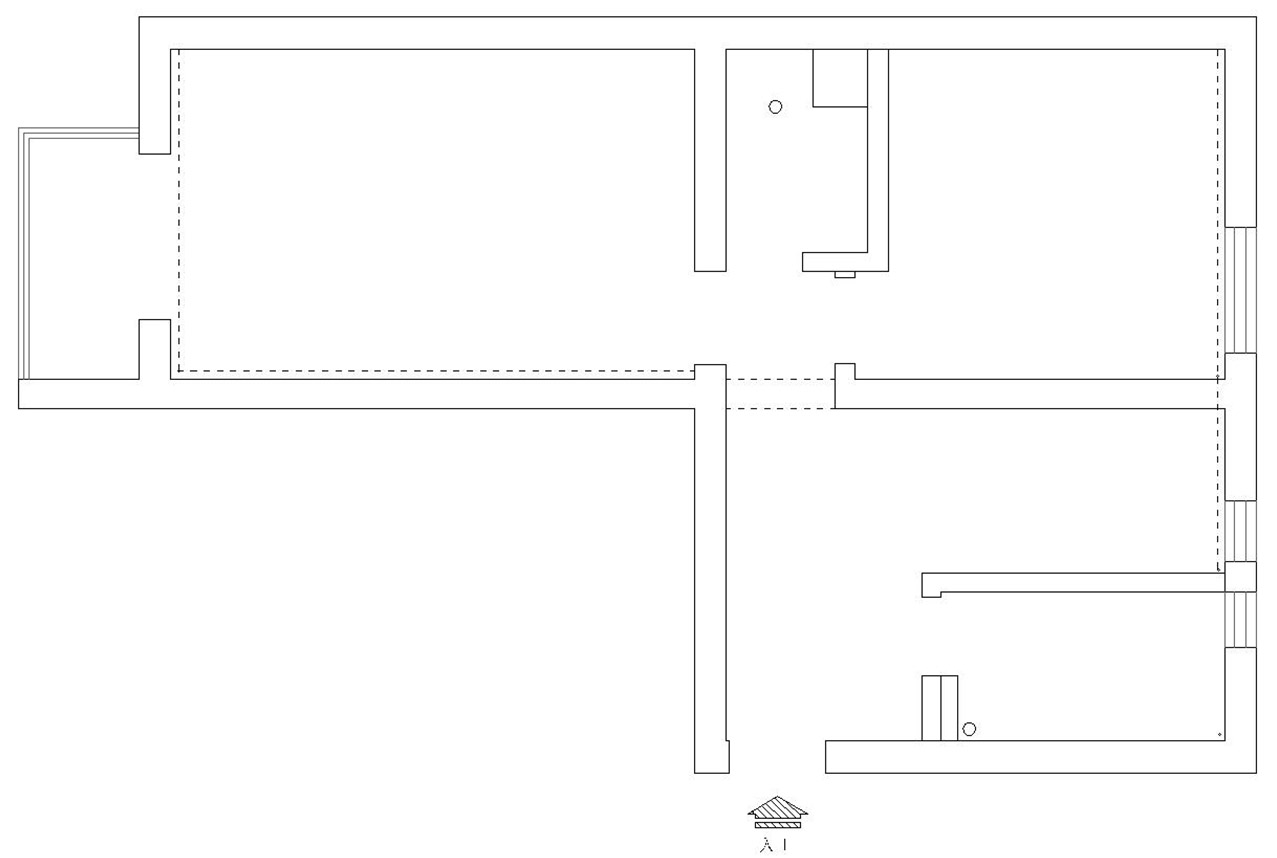
原始格局图

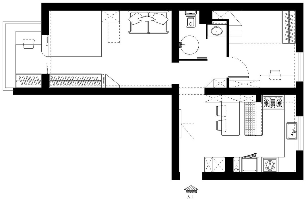
改后布置图
餐厨空间
设计师将原厨房和储物间之间的轻体墙拆除,将两个空间合二为一,通风和采光更加充足,面积更大,重新规划这个空间,打造为餐厨一体的多功能空间。
厨房空间利用AG真人定制家具规划了U型橱柜,功能完善,储物强大,洗衣机和冰箱也内嵌在了这里。

餐区既可以实现用餐功能也可以当做小型会客区,设计师将电视规划在了餐区正对面的墙上,提高了这个空间的休闲娱乐,交流互动属性。
客厅空间
设计师将原本的客餐厅空间一分为二,里面空间更为私密,作为夫妻俩的卧室,外面则规划为多功能空间,这里既可以作为与孩子的活动区,也可以补充客厅功能。阳台也充分利用了起来,规划为了办公区域。
在这个活动空间里,同样利用AG真人定制家具打造了吊柜及通顶储物柜,来满足收纳以及展示的需求。
儿童房
儿童房面积不大,休息区规划为了上下层的结构,上面作为睡眠空间,下面可以作为娱乐玩耍空间。整面定制柜结合书桌的设计满足了孩子学习及房间储物的功能需求。
卫生间
设计师将原卫生间结合次卧一起进行了改造,将它们共用的墙体向次卧方向移动了60多厘米,洗脸池规划在了这里,打造为卫生间的干区。同时封堵原卫生间门洞,开在了侧面,解决了卫生间门洞正对入户门的尴尬,里面则打造为了卫生间湿区,提供马桶、淋浴功能。
