王女士家的这套房子建筑面积75平米,使用面积55平米,是老式的三居室格局。暂时是王女士独自生活在这里。所以,这次的装修她希望除了格局上满足她现在的生活方式外,还希望在风格上能体现出自己的个性。

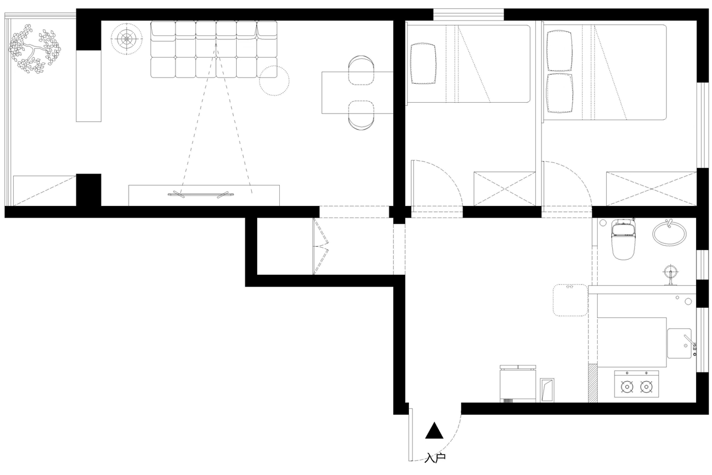
原始户型图

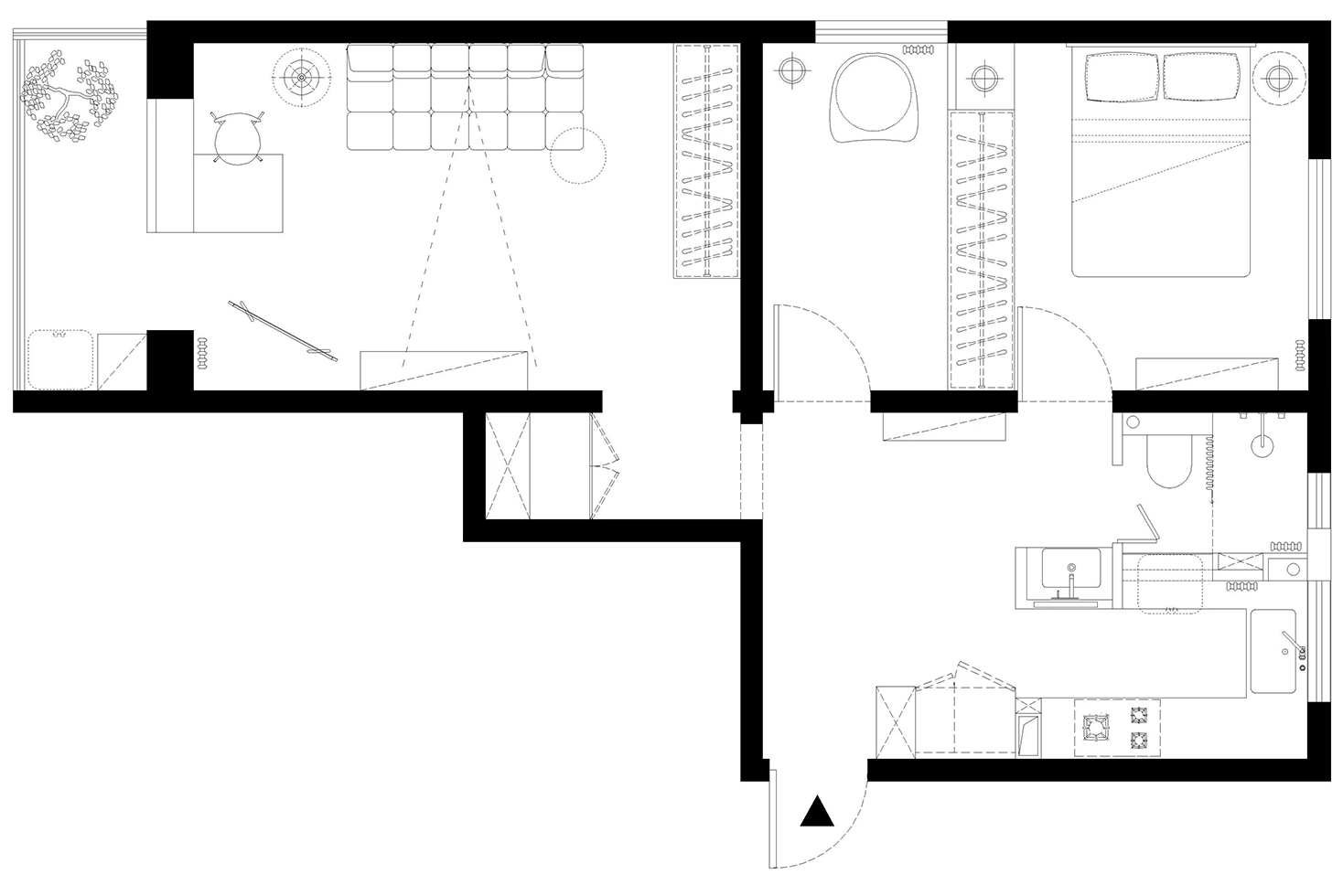
改后户型图
装修需求
增加门厅储物空间,改善门厅采光
合理规划厨房,增加操作空间和储物空间
卫生间实现干湿分离
合理规划客厅,满足办公、休闲放松等需求
门厅空间
门厅面积9平米,设计师将部分门厅空间分配给了厨房和卫生间,入户空间一组通顶的储物柜来满足进门储物。
厨房空间
厨房改为开放式,延伸至门厅,空间由原来的3平米扩到到现在的将近6平米。U形的厨房布局,洗切炒动线合理,操作空间宽敞。通过尺寸的精准排布,洗衣机、厨房小家电也都找到了合适的位置。
卫生间
卫生间由原来1.9平米,扩大到现在的2.2平米,扩充出来的这部分空间,作为卫生间的洗漱空间,让卫生间实现了干湿分离。S墙的设计,让卫生间和厨房空间,无论从平面还是立面上利用的都更加充分。壁挂马桶,还解决了卫生间高台的问题。
卧室空间
朝北的这间作为主卧室,但是因为只有8平米,所以借用了一部分次卧的空间,同时用定制家具作为这两间卧室的隔断,分隔主卧室与书房,节省了空间。使用风管机代替挂式空调,用吊顶把管道、风管机设备都藏起来。风格上,亚麻、胡桃、绿植等材质运用,来营造南洋复古风。
书房空间
第二卧室现在变成了书房,面积从6.8平米缩小了5.2平米,而书房作为一个独立的沉浸式阅读空间,不需要太大,反而静谧、氛围感是需要着力营造的。
客厅空间
客厅打破传统的电视、沙发的正对布局,采用去中心化的布局方式,满足客厅的休闲、会客、办公、储物等多种功能。









