51平米的老房,这次小两口打算把它变成婚房。因为医生的职业特点,小两口都希望能干净、整洁。还希望一居能变两居,因为考虑到未来有孩子,父母过来带能临时有地方住。
装修需求
●增加门厅储物空间,满足日常换衣换鞋需求
●合理规划卧室,满足休息、办公、储物需求
●合理规划厨房,增加收纳空间
●合理规划客厅,实现会客、就餐功能外,还要增加一间居室
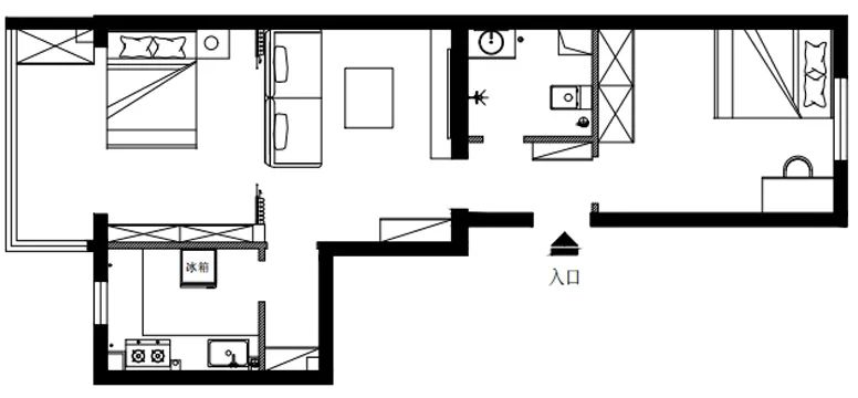
原始户型图
改后布局图
门厅空间
设计师通过往里推卫生间的一面墙,再挪移卫生间、主卧室的两扇门,实现了业主想要的门厅空间了,定制鞋帽柜储物量惊人,细节上,门厅做了吊顶,加了筒灯,侧边15厘米处还有反光灯槽,灯光更加柔和。
卫生间
为了配合整体的风格,从门厅,到客厅,再到卧室,隐形门是延着过道动线一直延伸的。推开第一道隐形门,就是卫生间,实现了干湿分离,品质也不低。
卧室空间
卧室的门往里推了60厘米,新砌的墙体在卧室形成一个内嵌空间,做了两组定制衣柜。顶面的主灯,以及灯带,设计师也是考虑两个人起居特点,做了特别的设计!
选择是这种渐变式的这种灯光,它可以无限地去调节,更亮,或者是更暗,去迎合它的一个舒适状态,窗帘里边的灯带,可以调的很柔和,完全是不刺眼。
次卧空间
一个人居住的情况下,至少得8平米的空间,但因为面积的原因设计师把这个空间已经压缩到最小了。
要考虑到老人这个睡眠,床头柜,衣柜的一个使用,设计师加了一个30厘米的长虹玻璃,能把光给采进来的同时,还能保证后期的一个私密性,这个中间镂空部分,使整个空间感有了个延伸,这个高度能达到3米以上,老人住起来的话,还是比较舒适的。
厨房空间
将厨房原来的墙体全部拆除,厨房面积一下大了,厨房是半开放式,下面是墙体,上面是一整面的玻璃,与玻璃相连的是一个转角的吧台,可以作为多功能的导台使用。
客厅空间
设计师把阳台1米3的空间给融入进来了,整体下来,客厅能达到4米的一个长度,再到厨房这个隔断玻璃也有4米,总体这个空间还是比较宽敞的,达到了三个功能的共享,一是会客厅,包括这边的一个用餐学习区。
其次是这个阳台,设计师做了一个12公分的小矮台,平常这边沙发能满足4个人坐下,来亲戚朋友,这个阳台的小地台,它也可以席地而坐。


